Portland Road

South Norwood, London

2016

Five homes with a ground floor community cafe in South London for an SME developer.

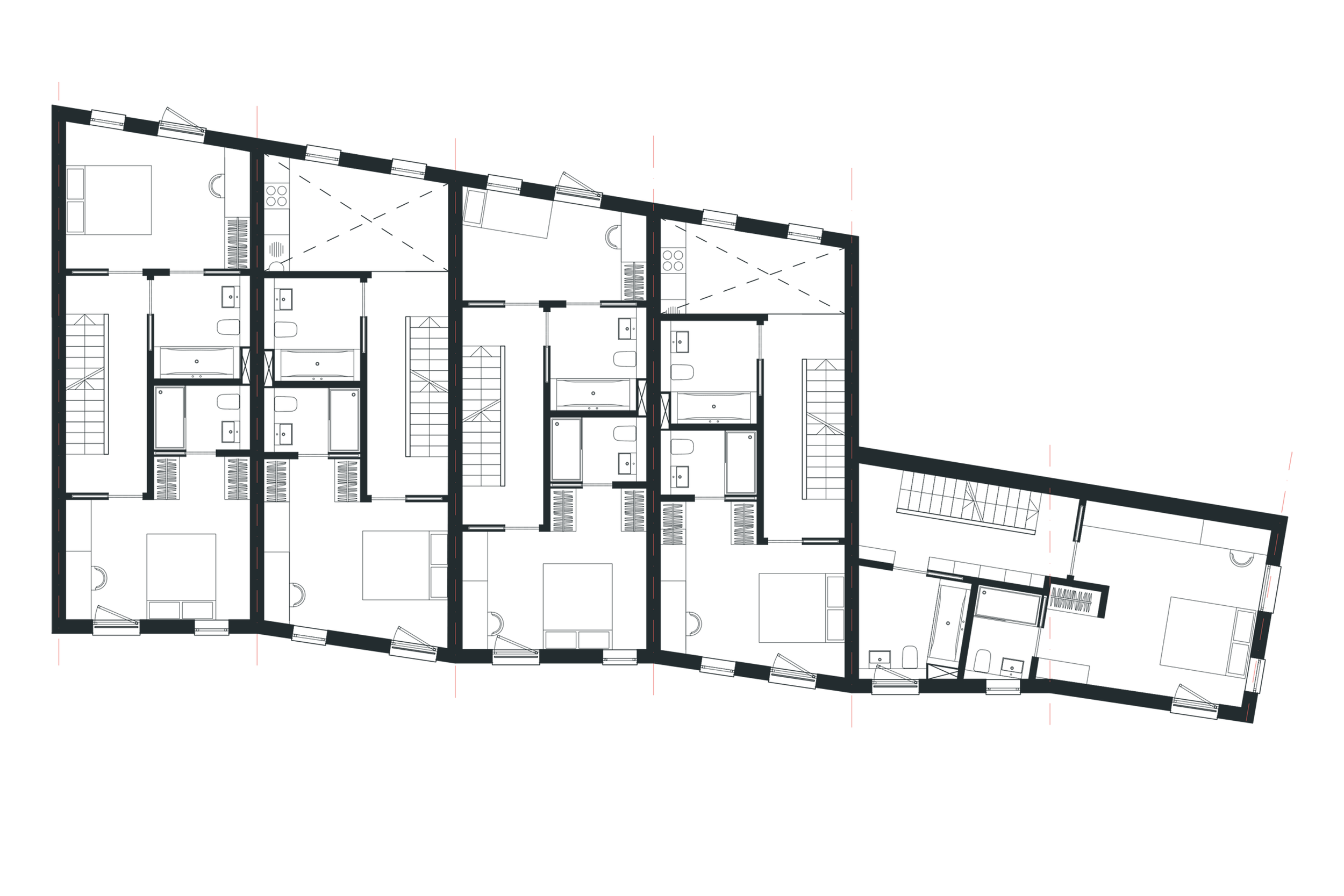
The houses are a combination of two and three bedrooms each split over three levels, with the two bedroom homes offering a double height living space with overlooking internal balcony which could be adapted in the future if required. The houses are designed to be a contemporary take on the Victorian terrace - using a cross laminated timber frame faced in brickwork on the upper levels and timber on the ground level.

Marking the corner plot

Simple and elegant materials

The launch marks completion of phase one, which has been seven years in the making and has included on-site consultation with the 32° East artist community throughout. Phase one comprises four artists’ studios, a library (the only specialist art library in Uganda), restrooms, and a flexible café, which will function as an interim gallery and workspace until phase two completes.

Completing the street

The launch marks completion of phase one, which has been seven years in the making and has included on-site consultation with the 32° East artist community throughout. Phase one comprises four artists’ studios, a library (the only specialist art library in Uganda), restrooms, and a flexible café, which will function as an interim gallery and workspace until phase two completes.

Client

32° East

Collaborators

Localworks

Reuse

~200kgCO2e/m2

See also

Weymouth College Art Gallery